-
...07.07.2025 Customised ECO Home House Design
The Lodge is the top of the ECO-Range, Luxury, 4-Bed, family home. This 1685sqft / 157m2, 2-Storey dwelling has everything a spacious family home requires.
-
...03.05.2025 Another planning application submitted, this is for a replacement dwelling and garage near Cullybackey.😎
-
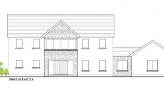
...01.05.2025 We're incredibly proud to share the completion of this fantastic Replacement Farmhouse, a customised version of our popular ECO Home House Type 4 – The Lodge! Read More
-
...29.04.2025 We recently submitted a planning application for a replacement dwelling and garage near Cullybackey.
-
...20.04.2025 t's been a busy month at FMK Architecture with multiple projects moving forward!
We're excited to announce that outline planning applications have been lodged for the following:
-
...17.04.2025 Fantastic progress from our energy-efficient self-build project outside Dungannon! We had a great site visit towards the end of March, and things are really taking shape – almost up to first floor/roof level!
-
...14.04.2025 Exciting news from FMK Architecture! We've just submitted another of our energy-efficient homes to planning – a stunning Replacement Dwelling & Garage near Annahilt, Hillsborough!
-
...10.04.2025 Exciting news from FMK Architecture! We've just submitted plans for a fantastic shop refurbishment in Belfast
-
...03.04.2025 Planning Submitted for a new dwelling
Ready to start your project? Get in touch today!
02825878650
info@fmkltd.com
-
...02.04.2025 Planning Submitted for a replacement dwelling
Ready to start your project? Get in touch today!
02825878650
info@fmkltd.com

